
近幾年來,我國木門領域成長持續安穩的增長形勢,產品類類不停增加,產質量量不停提升,工業范圍不停加大。據統計,我國度具市場上涵蓋木門制造營業的公司高達10 000多家,此中3000多家公司以機器化制造為主。
調研顯現,我國木門工業的年產值在過去10年里獲得大幅度提高,從2007年的400億元快速增長至2018年的1400億余元,位列世界第一。我國制造的木門首要投入海內市場,進口產品所占比重較小。

01 木門怎樣實行隔音性能?
現在市場上的木門品牌如TATA、美心、歐派等有名公司都制造生產了多款隔音木門,滿足了消費者對寧靜的居家和辦公場景的需要。同時許多中小型公司也在研究怎樣更好地實行木門的隔音解決,這類公司實行木門隔音性能的措施有以下幾種:

(1)在木門上裝載靜音五金件,如鎖具、門吸、合頁等,這類五金件采取磁極相吸的原理,使門框與門板慎密吸合,有效減少開關時發出的噪音,提升密封隔音成效;
(2)合理選擇木門構造層的資料,往往對木門芯板填充層做隔音解決,如應用橋洞力學板材、聚酯纖維吸音板、珍珠巖顆粒層、隔音棉等資料,可有效隔絕噪音的傳遞;

(3)改良傳統的木門構造,將木門的構造層設計為多孔狀或多格狀,生成隔音木門的要害主體構造;
(4)在木門的根基構造上附帶新資料,比如在門底裝載隔音條,以建立隔音體系。由此因此,各種木門公司對木門產品附帶性能的思想正在提高,隔音木門工業處于不停成長中。

02 一類實木復合門的隔音構造設計
本文采取框式構造進行一類榫卯構造的隔音木門設計實踐,屬于實木復合門。該木門由骨架與門扇構成,門扇由 6 塊芯板和 1 塊阻尼隔音板產生。
其好處在于,骨架構造用材之間采取斜角接合,骨架與芯板、芯板與芯板之間采取木條拼的接合方法,木門構造安穩,強度很高,加工工藝簡潔,便于公司進行大范圍批量化制造;芯板之間采取了阻尼隔音板,起優良的隔音功效,既可加重木門品質,還可有效減低制造與運輸本錢。

02-1 門的骨架設計
木門的角部接合往往劃為直角接合與斜角接合。該木門首要采取斜角接合,由上冒頭、下冒頭、左冒挺、右冒挺4個一些產生主體,其高低冒頭和左右冒挺均采取改善后的燕尾榫連通(如下圖1所示),左、右冒挺與芯板相鄰的一些分別開有2條凹槽便于與芯板連通。
針對傳統的燕尾榫,榫頭與榫槽分別設在2個部件上,一個部件集中設立梯臺榫頭,而另一個部件集中設立與之外形互補的梯臺形榫槽,進而使二者慎密連通。而該榫對傳統燕尾榫構造進行設計改善,2個貫串接部件均分別設有1對梯臺形榫槽和與其外形互補的梯臺形榫頭。成為一類斜角連通節點,此榫用來木門構造用材的斜角連通,可有效以免2個部件在受力時脫開,同時減少加工難度。

▲門的構造用材接合方法示企圖
02-2 門扇的設計
該木門由6塊芯板、8根木板條與1塊阻尼隔音板構成,詳細構成構造(如下圖所示)。芯板與門框之間采取穿條拼的接合方法,通過木板條涂膠,將開有凹槽的冒挺與芯板連通起來;芯板的左右雙側都開有凹槽,芯板之間采取穿條拼的接合方法連通,所采取的木板條為實木板條或膠合板條。
芯板的資料選取非常充足,實木及人造板都能夠滿足強度需要,芯板與木板條的實際數目可依據產品的實際制造尺寸進行調節。旁邊的構造層填充資料為阻尼隔音氈,阻尼隔音氈以高純度的精致鐵粉為原資料,采取的減震隔音技巧在日本已有20年的運用歷程,能夠有效地阻隔噪音,提升木門的隔音性能,為應用者創造寧靜舒坦的場景。

▲門扇構成構造示企圖
02-3 有關尺寸的設計
如下圖所示為本設計的木門實例,木門的總體高度為2024mm、寬度為840mm、厚度為40mm,分別由高低冒頭、左右冒挺、6塊芯板、8根木板條與1塊阻尼隔音板構成,各部件的全面屬性描繪如下。

▲實木門詳細施行例圖
左右冒挺的尺寸為外側長度2 024 mm、內側長度1784 mm,寬度120mm,高低冒頭的外側長度840mm、內側長度600mm、寬度120mm,厚度均為40mm。左冒挺與上冒頭接合縫的角度為45°,如下圖所示,4個角均采取該接合方法。

▲門框詳細施行例圖
左右冒挺的寬度為120mm、厚度為40mm,在冒挺高低兩頭4mm處各開1個厚度為7mm、深度為15mm的凹槽以擺放長1784 mm、寬30mm、厚7mm的木板條。芯板長度為1784mm、寬度為200mm、厚度為15mm,芯板在距離高低兩頭4mm處各開1個厚度為7 mm、深度為15 mm的凹槽以擺放長1784 mm、寬30 mm、厚7 mm的木板條,如下圖所示。

▲門框與芯板接合詳細施行例圖
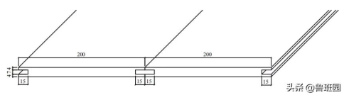
如下圖所示,芯板的長度為1784 mm、寬度為200mm,厚度為15mm,芯板在距離高低兩頭4 mm處各開1個厚度為7 mm、深度為15mm的凹槽以擺放長度為1784mm、寬度為30mm、厚度為7mm木板條。

▲芯板與芯板接合詳細施行例圖
阻尼隔音板的長度為1784 mm、寬度為600mm、厚度為10mm,擺放在高低芯板之間,以膠接合的方法和冒挺與芯板連通,如下圖所示。

▲芯板與阻尼隔音氈接合詳細施行例圖
03 寫在最終
實木門零部件較多,構造與制造工藝比較高難。實木復合門的構造有利于闡揚構造層資料特有的性能性,更好地滿足市場與消費者的需要。本計劃擁有構造簡潔、零部件規范化的特征,便于木門公司進行大范圍制造與運輸,以期對實木復合門的制造與成長起到絕對考慮功效。
作家 / 楊雪 編纂 / 言朢
楊雪,徐偉.基于框式構造的隔音
性能實木復合門設計實踐[J]. 家具,2020.
要害詞 /兒童餐椅 抗菌資料
關心魯班智造專題-木門智造,理解過更多家居設計前端→
魯班智造_家居工業自動生產連通者